__ DEV __
Sale

Apartment - Monaco - Saint-Roman - La Rousse

Reference : MC375
Panoramic sea view - Near downtown - Near seaside - Luminous - Terrace

Monte-Carlo Sun

13 000 000 €

Preview

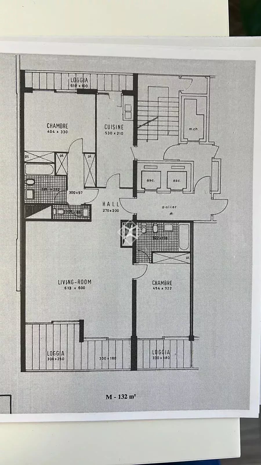
Living area: 154 sqm
view: Sea view - Panoramic
Terrace: 36 sqm

Description

Elegant Family Apartment – ​​Sea View and Lush Setting
In a luxury residence with 24-hour concierge, a swimming pool, and a summer restaurant, this magnificent family apartment enjoys a peaceful setting between the sea and the greenery.

Upon entering, a vast hall welcomes you and opens onto a bright living area, comprising a spacious living room and a welcoming dining room, ideally designed for entertaining. The fully equipped separate kitchen offers high-quality amenities and a functional space for everyday living.

The sleeping area consists of three bedrooms, including a master suite, each boasting beautiful proportions and a serene atmosphere. Two bathrooms, a shower room, and a guest toilet ensure comfort for the whole family.

Plenty of built-in closets provide optimal storage, while a large terrace allows you to fully enjoy the unobstructed view of the sea and the park.

A cellar and a large parking space complete this well-appointed property.

Non contractual document : The description, plans, and areas are only indicative.
Agency fees : 3 % + VAT

Location

  • Region: Monaco
  • Area: Monaco
  • City: Monaco - Saint-Roman - La Rousse

Organize a visit


Warning: Undefined variable $is_retail in /var/www/vhosts/magrey.com/dev/public/part/annonce/planning-visite.php on line 11

Similar properties

Discover other properties that might be suitable for you.

Apartment

Monaco - Saint-Roman - La Rousse

15 900 000 €
300 sqm
90 m²
Small view
3

Luxury apartement with rare private garden

View more
Apartment

Monaco - Saint-Roman - La Rousse

7 700 000 €
132 sqm
19 m²
Panoramic
2

Panoramic sea view, high floor

View more
Apartment

Monaco - Saint-Roman - La Rousse

3 670 000 €
60 sqm
10 m²
Panoramic
1

One bedroom appartement Château Périgord II

View more
Apartment

Monaco - Saint-Roman - La Rousse

8 500 000 €
136 sqm
31 m²
Open
2

Stunning sea view

View more
Apartment

Monaco - Saint-Roman - La Rousse

4 350 000 €
71 sqm
10 m²
Small view
1

Ideal for a couple

View more
Apartment

Monaco - Saint-Roman - La Rousse

3 650 000 €
73 sqm
13 m²
Small view
1

A few steps away from the beaches

View more

You can find out how we process your personal data on our .