__ DEV __
Sale

Apartment - Monte-Carlo

Reference : MC378
Downtown - Elevator - Large volumes - Accessible to disabled persons

Exclusive Townhouse in Monaco

Contact us

Preview

Living area: 333 sqm
view: City - Vis-a-vis
Terrace: 49 sqm

Description

Located in the "Villa Palazzino" residence, just steps from the prestigious Carré d'Or district and the Casino.

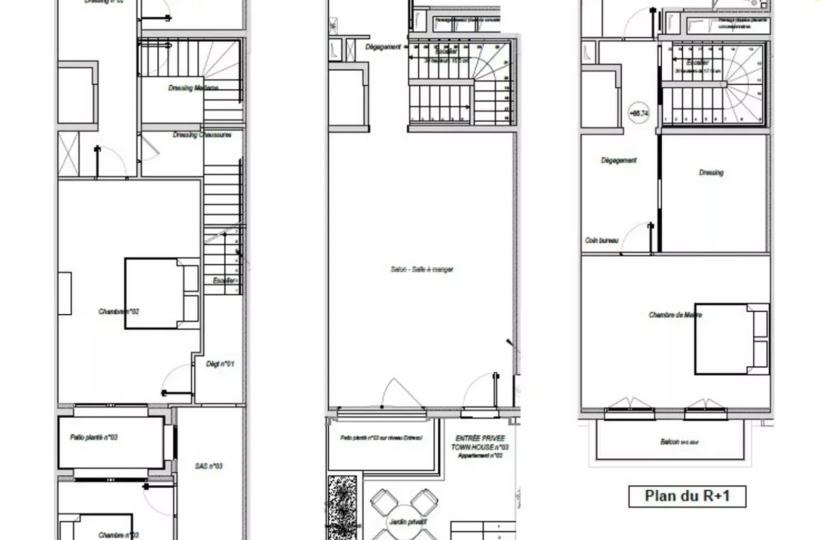
Spanning approximately 333 m² across three floors, the apartment offers complete privacy and independent access. It features fully bespoke furnishings, including high ceilings and custom-made pieces from Italy, England, and Asia.

The entrance is through an exterior patio.
On the ground and main floors, there is an entrance hall with built-in closets, a spacious living room with a dining area, and a large, fully equipped kitchen.

Ideally situated on the top floor is a luxurious suite opening onto a balcony, comprising an elegant dressing room and a large bathroom with access to a loggia.

On the lower ground floor, there is a 25 m² master bedroom with three walk-in closets (for bags, shoes, and clothes) and a 16 m² bathroom. A second spacious bedroom with a slightly recessed shower room is accessible via a walkway. The two bedrooms are separated by a patio that provides ample natural light.

The house is equipped with air conditioning, alarms, and security cameras. All floors are accessible by a private elevator or stairs.

Three parking spaces and a 50 m² cellar are included in the price.

Non contractual document : The description, plans, and areas are only indicative. Agency fees : 3 % + VAT

Location

  • Region: Monaco
  • Area: Monaco
  • City: Monte-Carlo

Organize a visit


Warning: Undefined variable $is_retail in /var/www/vhosts/magrey.com/dev/public/part/annonce/planning-visite.php on line 11

Last properties viewed

Browse last viewed

Villa - Toulon

Land - Valbonne

Similar properties

Discover other properties that might be suitable for you.

Apartment

Monte-Carlo

3 490 000 €
66 sqm
4 m²
0

Renovated 2-room luxury apartment in Golden Square

View more
Apartment

Monte-Carlo

Contact us
190 sqm
82 m²
Vis-a-vis
0

Luxury Apartment in the Heart of the Golden Square with Flexible Layout and Private Terrace

View more
Apartment

Monte-Carlo

9 490 000 €
164 sqm
34 m²
Panoramic
2

Les Abeilles 2 bedrooms panoramic sea views

View more
Apartment

Monte-Carlo

11 200 000 €
151 sqm
11 m²
Panoramic
3

New luxury building

View more
Apartment

Monte-Carlo

6 400 000 €
140 sqm
10 m²
Vis-a-vis
3

Perfectly Renovated 3-Bedroom Apartment

View more
Apartment

Monte-Carlo

16 800 000 €
290 sqm
140 m²
Panoramic
2

Golden Square Penthouse

View more

You can find out how we process your personal data on our .