__ DEV __
Sale

Apartment - Paris 1er

Reference : PRD55

Renovated apartment - Place du Marché Saint Honoré

1 395 000 €

Preview

Living area: 73 sqm
Bedrooms: 2
DPE

Description

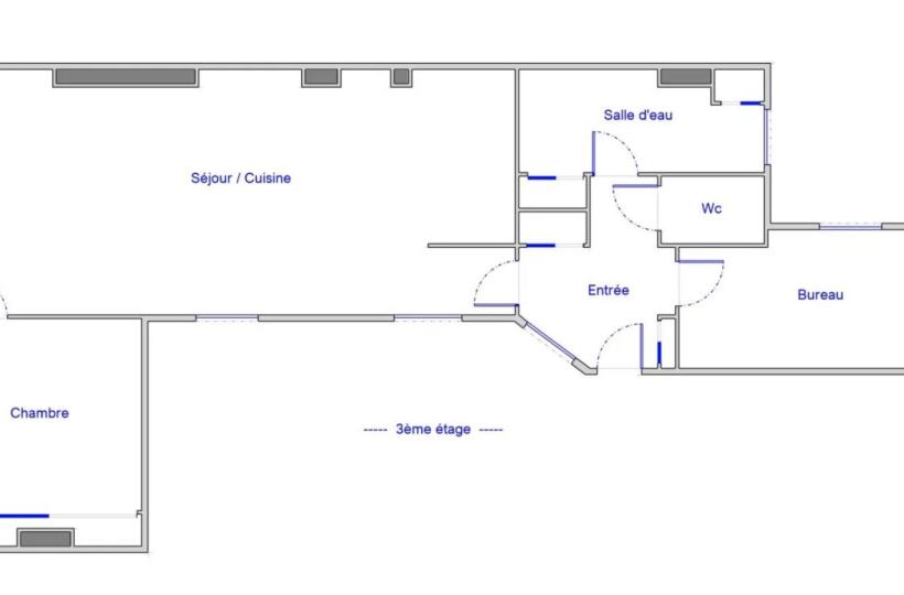
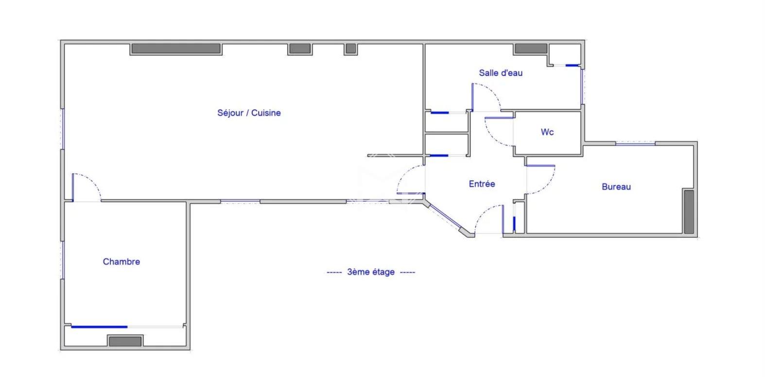
Ideally located on the Place du Marché Saint Honoré, this 72.46 m2 loi Carrez apartment is on the 3rd floor of a handsome building, accessible by staircase.

Recently renovated, the apartment features a large reception room with open-plan fitted kitchen, dining room and living room.

Street side: master bedroom with dressing room
Courtyard side: a small bedroom/study

A large shower room completes the property.

Location

  • Region: Paris
  • Area: Rive Droite
  • City: Paris 1er

Terms & Conditions

  • What are the stages in the purchasing process in France?

    Once you have visited a property and made up your mind, you sign a binding offer to purchase, setting out the essential conditions of sale. The file is then entrusted to a notary for signature of a promise to sell (“compromis de vente” or “promesse unilatérale de vente”). The notary then carries out a number of checks to provide the necessary legal security for the transaction, before signing the final deed of sale.

    To find out more about the detailed sales process, click here.

  • How long does the acquisition process take in France?

    Although each case is different, not least because of the notarial considerations involved, it generally takes 3 to 4 months from the signing of the offer to purchase to the handover of the keys.

  • What are the acquisition costs in France?

    Agency fees are included in the sale price.

    Conversely, notary fees are payable by the buyer in addition to the sale price. The calculation of notary fees depends on a number of parameters (geographical location of the property, whether or not the property has furniture already been sold, whether or not the buyer has taken out a bank loan, etc.), but they are generally around 7% of the purchase price. Reduced notary fees may apply to new properties sold by professionals.

  • Do I have to pay a deposit when I sign up?

    A security deposit, usually set at 10% of the sale price, must be paid into the notary's account at the same time as the promesse de vente is signed.

  • What support do you offer?

    Tailor-made support and advice for buyers, from the initial visit to the final sale, are at the heart of our commitment:

    • sales support to answer all your questions
    • legal and tax support to help you structure and carry out your purchase
    • banking support to help you find the right financing if necessary

Organize a visit


Warning: Undefined variable $is_retail in /var/www/vhosts/magrey.com/dev/public/part/annonce/planning-visite.php on line 11

Last properties viewed

Browse last viewed

Villa - Saint-Aygulf

Villa - Saint-Jean-Cap-Ferrat

Land - Valbonne

You can find out how we process your personal data on our .